Conception d’un intérieur sur mesure. Trillium Agencement 13 août 2024

Conception d'un intérieur sur mesure

| Projet Béton Silk |

Pour ce projet de construction d’une villa contemporaine, l’étude a commencée avant les travaux, car il était impossible de se projeter avec les seuls plans du constructeur. Les services proposés ont donc été :

  • création de plan (et conseils)
  • création de 3D et visite virtuelle
  • fourniture et pose des équipements (cuisine, bureau, cellier, placard d’entrée)

👉  Cette analyse permet de se projeter et d’adapter son futur habitat à son mode de vie, ses habitudes… et non à celles de l’architecte ou du constructeur qui vous dessine les plans.

💡 C’est là que nous intervenons : pour vous apporter notre expertise et créer un intérieur sur mesure répondant à vos besoins et envies.

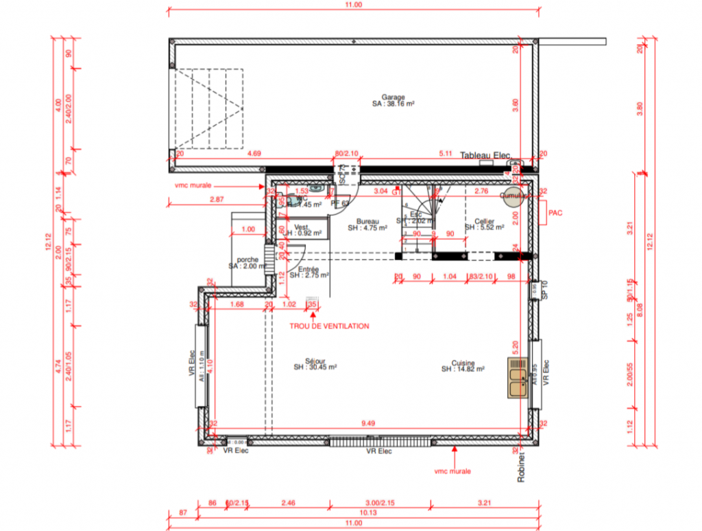
Étape 1 : 📐Analyse des Plans du Constructeur


Le travail a commencé par une analyse approfondie des plans fournis par le constructeur. Nous avons identifié les points de modification potentiels, tels que :

  • la position des portes et leur sens d’ouverture,
  • la position des fenêtres et leurs types d’ouvertures,
  • les cloisons,
  • les éléments structurels (pilier, hauteur sous plafond…)

👉 Ces éléments impactent directement l’ergonomie et le design intérieur de la pièce de vie.

Étape 2 : ✏️ Conception de Plans Sur Mesure

Après échange avec les clients pour cerner ses attentes, nous avons repensé l’agencement en intégrant :

  • Un positionnement optimisé des meubles

  • Une circulation fluide et intuitive

  • Une harmonie entre fonctionnalité et esthétisme

Étape 3 : Modélisation 3D 🎨 et simulation immersive

Pour aider les clients à mieux visualiser les espaces, nous avons créé une modélisation 3D du plan. Grâce à cette technologie, le client a pu effectuer une visite virtuelle de son futur intérieur, ce qui a permis d’identifier et de corriger certains détails avant le début des travaux.

Cette immersion a aidé le client à affiner ses choix et à anticiper d’éventuels surcouts post construction (ajout et modification de fenêtres, ajout de cloisons, abaissement du plafond sur zone salon).

En parallèle, nous avons élaboré un devis détaillé pour que le client ait une vision claire des coûts impliqués.

Étape 4 : Réalisation des Plans techniques 📝

Une fois le plan validé, nous avons préparé les plans techniques nécessaires pour les artisans :

  • Schémas électriques

  • Arrivées et évacuations d’eaux

Une fois les travaux terminés nous son sommes rendus sur place pour une visite technique (qui permet d’éviter des problèmes à la pose) afin de vérifier la conformité d’exécution des plans fournis.
Dans ce cas là, il y avait une erreur sur l’allège de la fenêtre ainsi que sur une prise et l’évacuation de la hotte avait été oubliée. Erreurs qui ont été corrigées avant la livraison des meubles.

Étape 5 : Installation 🛠️

Les travaux ont été réalisés en respectant les plans validés et plans d’exécutions. 

Ce projet comporte une cuisine équipée en Fénix noir mat anti-traces, des portes en placage bois « rustique » et un plan de travail en céramique Béton Silk de la marque Neolith.

Il y a également un placard/vestiaire d’éntrée, un cellier et un bureau. (tous ces projets seront détaillés dans de prochains articles).

Étape 6 : Résultat final 🏆

Cuisine bois et noire

Le projet s’est achevé sur une réalisation en parfaite adéquation avec les attentes du client. La cuisine noire et bois s’intègre harmonieusement à l’ensemble de la pièce de vie, offrant un espace à la fois élégant et fonctionnel.

Conclusion

Faites de votre projet une réalité ! ✨

 

Grâce à notre expertise en conception d’intérieurs sur mesure et à l’usage de la modélisation 3D, nous vous aidons à créer un espace de vie qui vous ressemble.

Si vous souhaitez donner vie à votre projet, contactez-nous dès aujourd’hui ☎️ !

cuisine équipée Vaucluse